wynajem
Numer oferty
484/10680/OLW
Kategoria
Biura, lokale
Adres
Łódź
Cena
47.00 zł netto/m2
(8 500 zł miesięcznie)
(8 500 zł miesięcznie)
Powierzchnia
180 m2
Przeznaczenie
Handlowo/Usługowe
Piętro
0
Liczba pięter
2
Rodzaj budynku
Budynek biurowy
Klasa budynku
B
Stan budynku
Bardzo dobry
Lokal handlowy parter front parking
0% PROWIZJI – prowizję agencji pokrywa właściciel nieruchomości
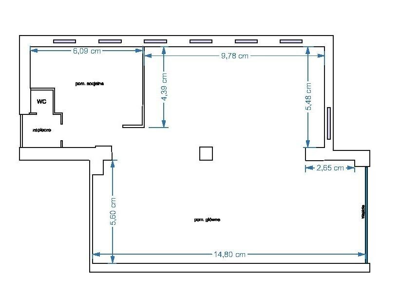
Lokal handlowy z witryną – 180 m², zachodnie Śródmieście Łodzi
Proponujemy do wynajęcia lokal handlowy o powierzchni 180 m², położony w ramach mini centrum handlowego w zachodniej części śródmieścia Łodzi. Lokal idealny dla firm usługowych, handlowych lub prowadzących działalność wymagającą wyeksponowanej witryny i łatwego dostępu dla klientów.
Lokal obejmuje:
Wejście do lokalu prowadzi bezpośrednio z parkingu, co zapewnia doskonałą widoczność oraz wygodny dostęp. Dla najemcy przewidziane jest jedno miejsce parkingowe dla pracowników – w cenie najmu.
Parking dla klientów jest bezpłatny i bez ograniczeń.
Dodatkowym atutem jest możliwość umieszczenia reklamy zewnętrznej nad wejściem – w cenie najmu. Istnieje możliwość dokupienia dodatkowej przestrzeni reklamowej.
Lokalizacja: dobra ekspozycjia na ruch samochodowy.
Koszty najmu:
Lokal handlowy z witryną – 180 m², zachodnie Śródmieście Łodzi
Proponujemy do wynajęcia lokal handlowy o powierzchni 180 m², położony w ramach mini centrum handlowego w zachodniej części śródmieścia Łodzi. Lokal idealny dla firm usługowych, handlowych lub prowadzących działalność wymagającą wyeksponowanej witryny i łatwego dostępu dla klientów.
Lokal obejmuje:
- przestronną salę sprzedaży,
- niewielkie zaplecze z aneksem kuchennym,
- toaletę.
Wejście do lokalu prowadzi bezpośrednio z parkingu, co zapewnia doskonałą widoczność oraz wygodny dostęp. Dla najemcy przewidziane jest jedno miejsce parkingowe dla pracowników – w cenie najmu.
Parking dla klientów jest bezpłatny i bez ograniczeń.
Dodatkowym atutem jest możliwość umieszczenia reklamy zewnętrznej nad wejściem – w cenie najmu. Istnieje możliwość dokupienia dodatkowej przestrzeni reklamowej.
Lokalizacja: dobra ekspozycjia na ruch samochodowy.
Koszty najmu:
- 8500 zł netto – czynsz najmu,
- media: prąd, woda, ogrzewanie wg licznika,
- 1 miejsce parkingowe – w cenie najmu,
- reklama zewnętrzna nad wejściem – w cenie; dodatkowa reklama płatna.
Dodatkowe informacje
Klimatyzacja
tak
Recepcja
nie
Liczba toalet
1
Otwierane okna
tak
Plan
484/10680/OLW
Link do oferty: https://www.pawlik.com.pl/oferta/lokal-handlowy-parter-front-parking-4/
